Verkocht:Akersteenweg 44, 6227 AA Maastricht - Foto
Verkocht
+38

Akersteenweg 44 6227 AA Maastricht

  • Eengezinswoning
  • 7 kamers
  • 4 slaapkamers
  • Bouwjaar 1920
  • 272 m² perceeloppervlakte
  • 125 m² gebruiksoppervlakte
  • C Energielabel C

Beschrijving

Aan de Akersteenweg in Heer ligt deze verrassend ruime woning uit circa 1920. Achter de karakteristieke gevel gaat een huis schuil waar de afgelopen jaren aanzienlijk is geïnvesteerd in constructie, comfort en verduurzaming.
De basis is solide. Recentelijk is een uitbouw gerealiseerd, zijn de constructieve vloeren op de begane grond vernieuwd, is vloerverwarming aangebracht en zijn zonnepanelen en een hybride warmtepomp geplaatst. Tegelijkertijd bieden met name de eerste verdieping en het souterrain nog ruimte om naar eigen smaak verder af te werken. Een combinatie van een sterke technische basis en mogelijkheden voor verdere persoonlijke invulling.

Ligging

De woning ligt in de geliefde wijk Heer. Winkels, scholen, sportvoorzieningen en openbaar vervoer bevinden zich op korte afstand. Ook het MUMC+, MECC en het centrum van Maastricht zijn snel bereikbaar, evenals de A2 en andere uitvalswegen. Een centrale woonlocatie met alle dagelijkse voorzieningen binnen handbereik.

Indeling

Souterrain
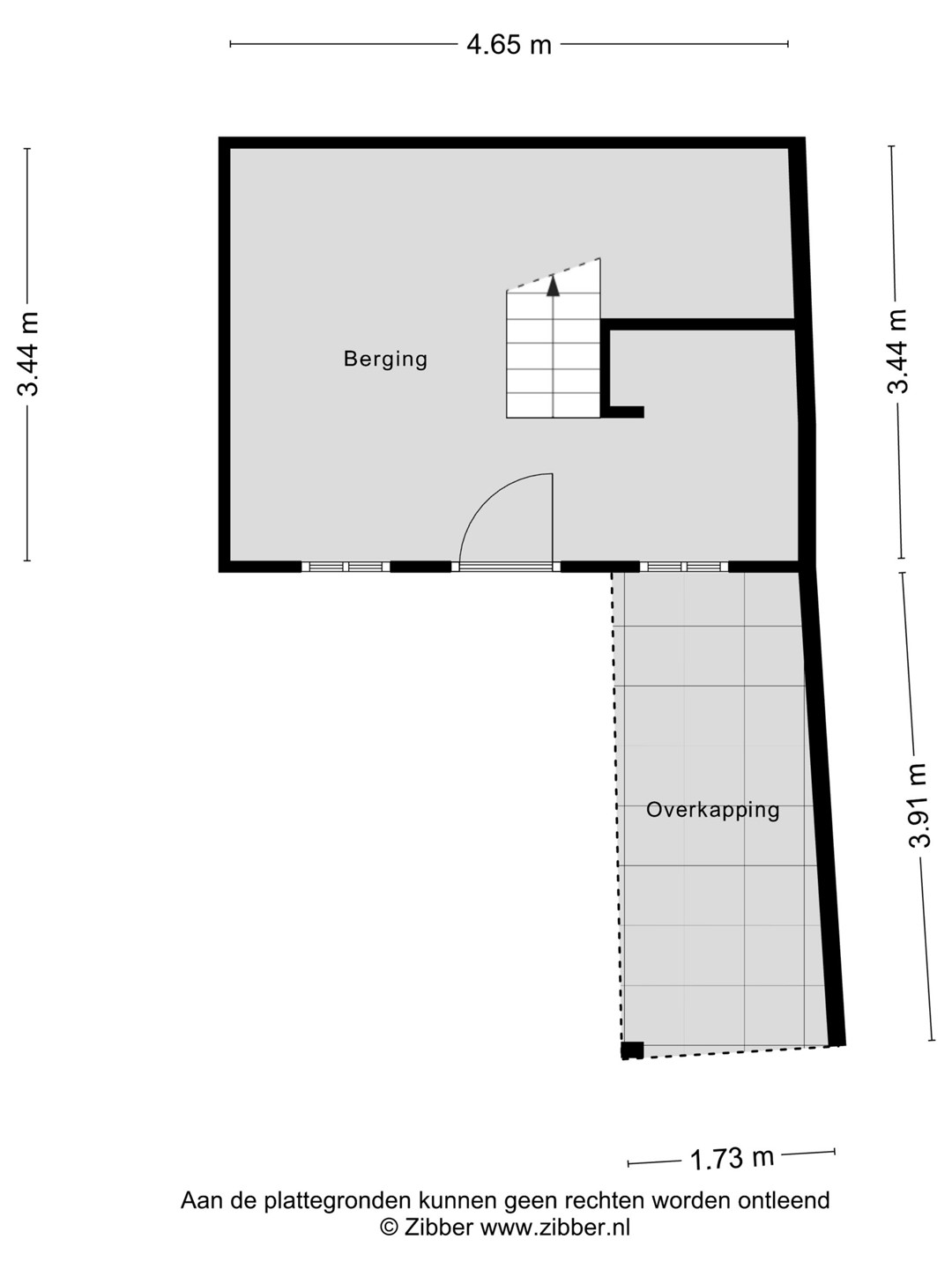
De woning is onderkelderd en circa 45 m² groot. Het souterrain is bereikbaar vanuit de woonkamer. Hier bevinden zich een extra slaapkamer, ideaal als logeer- of werkkamer, en ruime bergruimte. Het souterrain is voorzien van vloerverwarming, maar nog niet volledig afgewerkt.

Begane grond
Via de entree betreedt u de woning. Direct valt de speelse split-level indeling op.
De leefkeuken bevindt zich op straatniveau. De oorspronkelijke houten balklaag is hier volledig vervangen door betonnen balken met vloerbroodjes en een betonvloer. De ruimte is voorzien van vloerverwarming en ingericht met een royaal spoel- en kookeiland en inbouwapparatuur in wandopstelling. Dankzij de grote raampartijen is dit een lichte en aangename leefruimte waar koken en tafelen samenkomen.
Enkele treden lager bevindt zich de woonkamer op tuinniveau. Hier ligt een visgraat houten vloer en zorgen de hoge achterpui met zwarte kozijnen en openslaande deuren voor veel lichtinval en direct contact met de tuin. Het niveauverschil creëert een open vide-effect en geeft de woning een ruimtelijk en karaktervol geheel.

Eerste verdieping
De verdieping bestaat uit een overloop, separaat toilet, drie slaapkamers en een badkamer.
De badkamer is voorzien van een ligbad, wastafel en een raam voor natuurlijke ventilatie. Functioneel ingericht, maar niet gemoderniseerd. De slaapkamers zijn ruim van opzet. De afwerking van deze verdieping is nog niet volledig afgerond. Zo dienen de vloeren nog te worden afgewerkt en vragen enkele wanden nadere afwerking. Dit biedt de mogelijkheid om de verdieping geheel naar eigen smaak en niveau te voltooien.

Zolder
Via een vlizotrap bereikbare bergzolder met vernieuwde houten balklaag en dakbeschot. Hier bevinden zich onder andere de cv-ketel en de hybride warmtepomp. Daarnaast is er praktische bergruimte.

Tuin
De diepe, omsloten achtertuin is bereikbaar vanuit de woonkamer én via het souterrain. Een groene stadstuin met gazon, borders en achterin een vrijstaande voormalige duiventil dat geschikt is als berging of hobbyruimte. Door de diepte zijn er meerdere terrasmogelijkheden en is er sprake van volop privacy.
Via een recht van overpad is er door de poort aan de voorzijde van de woning toegang tot de achtertuin.

Bijzonderheden

* Bouwjaar circa 1920
* Moderne aanbouw achterzijde
* Split-level indeling met vide-effect
* Spoel- en kookeiland
* Keuken, uitbouw en souterrain voorzien van vloerverwarming
* 10 zonnepanelen
* Hybride warmtepomp
* CV-ketel op zolder
* Onderkelderd
* Verdieping nog naar eigen smaak af te werken
* Diepe tuin

Deze woning combineert karakter en een opvallende indeling met belangrijke duurzame investeringen die reeds zijn uitgevoerd. De constructieve en technische basis is gelegd, waardoor de nieuwe eigenaar zich kan richten op verdere afwerking en persoonlijke invulling.
Bent u op zoek naar een woning met sfeer, ruimte en een centrale ligging in Heer? Dan nodigt Marcel Overhof Makelaardij u graag uit om Akersteenweg 44 zelf te komen ervaren.

Kaart

Kenmerken

Overdracht

Vraagprijs
€ 395.000,- k.k.
Status
Verkocht
Aanvaarding
In overleg
Aangeboden sinds
Donderdag 26 februari 2026
Laatste wijziging
Zaterdag 28 maart 2026

Bouw

Type object
Eengezinswoning, woonhuis, tussenwoning
Soort bouw
Bestaande bouw
Bouwjaar
1920
Dakbedekking
Bitumen
Dakpannen
Type dak
Samengesteld
Isolatievormen
Dakisolatie
Muurisolatie

Oppervlaktes en inhoud

Perceeloppervlakte
272 m²
Woonoppervlakte
125 m²
Woonkameroppervlakte
24 m²
Inhoud
572 m³
Oppervlakte overige inpandige ruimten
36 m²
Oppervlakte externe bergruimte
34 m²
Tuinoppervlakte
180 m²

Indeling

Aantal bouwlagen
3 (en 1 kelder)
Aantal kamers
7 (waarvan 4 slaapkamers)

Locatie

Ligging
Aan drukke weg
In woonwijk

Tuin

Type
Achtertuin
Hoofdtuin
Ja
Oriëntering
Zuiden
Heeft een achterom
Ja
Staat
Normaal
Tuin 2 - Type
Achtertuin
Tuin 2 - Staat
Normaal

Energieverbruik

Energielabel
C

CV ketel

CV ketel
Remeha Calenta 28C CW4
Warmtebron
Gas
Bouwjaar
2016
Combiketel
Ja
Eigendom
Eigendom

Uitrusting

Warm water
CV-ketel
Verwarmingssysteem
Centrale verwarming
Vloerverwarming (gedeeltelijk)
Badkamervoorzieningen
Ligbad
Wastafel
Glasvezelaansluiting aanwezig
Ja
Tuin aanwezig
Ja
Heeft schuur/berging
Ja
Heeft zonnecollectoren
Ja

Kadastrale gegevens

Kadastrale aanduiding
Heer A 4026
Perceeloppervlakte
272 m²
Omvang
Geheel perceel
Eigendomsituatie
Eigen grond

Brochure(s) en overige bijlagen

brochure Download