Verkocht onder voorbehoud:Kremersdreef 32, 6216 SX Maastricht - Foto
Verkocht onder voorbehoud
+32

Kremersdreef 32 6216 SX Maastricht € 295.000,- k.k.

  • Eengezinswoning
  • 7 kamers
  • 4 slaapkamers
  • Bouwjaar 1965
  • 153 m² perceeloppervlakte
  • 103 m² gebruiksoppervlakte
  • D Energielabel D

Beschrijving

In een rustige, groene woonomgeving in de wijk Belfort ligt deze verzorgde tussenwoning met fijne lichtinval, drie volwaardige slaapkamers plus een zolderkamer, een heerlijke tuin met overkapping en -optioneel- een garage. Een ideale gezinswoning, netjes onderhouden en met de mogelijkheid om naar eigen smaak te moderniseren.

Indeling

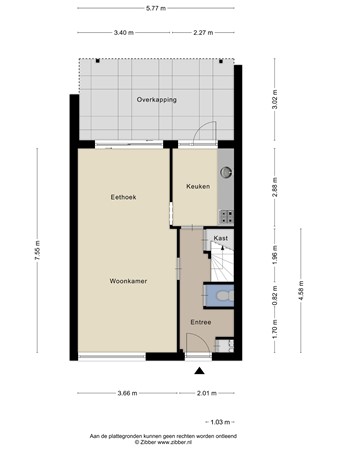
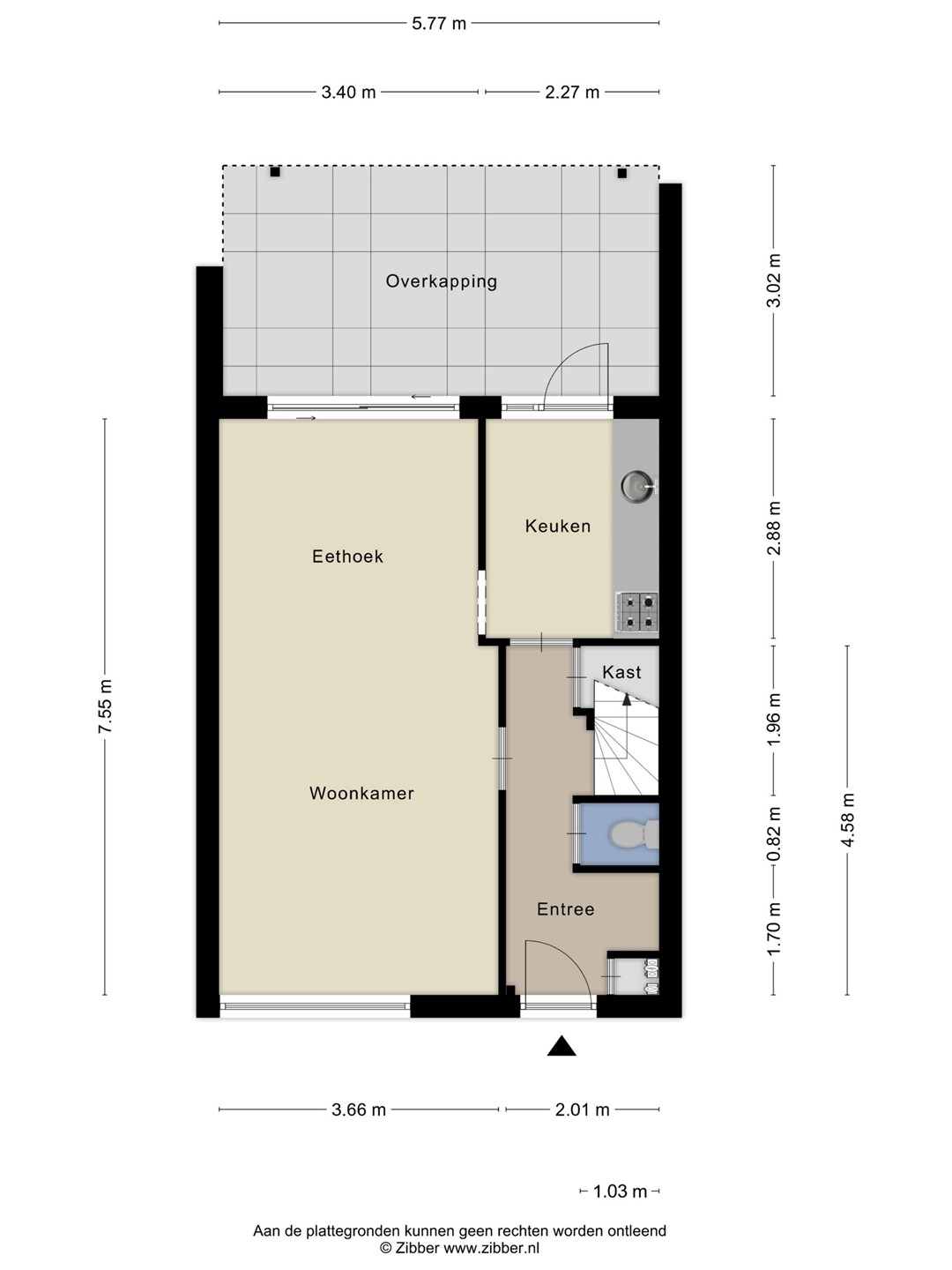
Begane grond

Bij binnenkomst kom je in de hal met meterkast, trapopgang, bergkast en toilet. Vanuit hier stap je de lichte doorzonwoonkamer binnen, met aan de voorzijde een groot raam met zicht op groen in de straat. Achterin is ruimte voor een eethoek, met direct zicht op de tuin. De keuken ligt aan de achterzijde en is uitgevoerd in een rechte opstelling. Een praktische ruimte met volop mogelijkheden om naar eigen wens te moderniseren, en groot genoeg voor een kleine eettafel. Vanuit hier stap je zo onder de overkapping het terras op, waar je in alle seizoenen beschut kunt genieten.
De achtertuin is verzorgd aangelegd met een overkapt terras, graspartij en volwassen beplanting. Achterin bevinden zich een berging en een tweede overkapping, en via de achterom is de tuin ook van buitenaf bereikbaar.

Eerste verdieping

De overloop geeft toegang tot drie ruime slaapkamers en de badkamer. De slaapkamers (circa 14, 13 en 7 m²) zijn goed van formaat en licht dankzij de grote ramen. De badkamer is modern uitgevoerd met een inloopdouche en wastafelmeubel.

Zolderverdieping

Via een vaste trap is de zolder bereikbaar. Hier bevindt zich een ruime zolderkamer met dakramen aan beide zijden en veel bergruimte in de vaste kasten onder het schuine dak. Het voorportaal is de opstelplaats van de cv-ketel en witgoedapparatuur zoals wasmachine.
Deze verdieping is uitstekend geschikt als vierde slaapkamer, werk- of hobbyruimte.

Garage

Bij de woning is een separate garage beschikbaar, gelegen in de directe nabijheid (meerprijs € 25.000).

Omgeving

De Kremersdreef ligt in een rustige woonstraat in Belfort, met volop parkeergelegenheid en veel groen. In de directe omgeving vind je scholen, winkels, sportvoorzieningen en openbaar vervoer. Het centrum van Maastricht is binnen circa tien minuten bereikbaar, evenals de A2 en A79.

Bijzonderheden

- Goed onderhouden woning met prettige indeling
- Zonnige tuin met overkapping en achterom
- Drie slaapkamers en ruime zolderkamer
- Moderne badkamer
- Geïsoleerd dak, dubbel glas
- Rolluiken rondom
- Separate garage (€ 25.000)

Een heerlijk huis voor wie comfortabel wil wonen in een rustige, kindvriendelijke wijk, met alle voorzieningen binnen handbereik. Maak nu een afspraak voor een bezichtiging, we heten je van harte welkom.

Kaart

Kenmerken

Overdracht

Vraagprijs
€ 295.000,- k.k.
Status
Verkocht onder voorbehoud
Aanvaarding
In overleg
Aangeboden sinds
Donderdag 9 oktober 2025
Laatste wijziging
Zondag 9 november 2025

Bouw

Type object
Eengezinswoning, woonhuis, tussenwoning
Soort bouw
Bestaande bouw
Bouwjaar
1965
Dakbedekking
Dakpannen
Type dak
Zadeldak
Isolatievormen
Dakisolatie
Dubbel glas

Oppervlaktes en inhoud

Perceeloppervlakte
153 m²
Woonoppervlakte
103 m²
Woonkameroppervlakte
28 m²
Inhoud
364 m³
Oppervlakte externe bergruimte
28 m²
Oppervlakte gebouwgebonden buitenruimte
17 m²
Tuinoppervlakte
100 m²

Indeling

Aantal bouwlagen
3
Aantal kamers
7 (waarvan 4 slaapkamers)

Locatie

Ligging
Aan rustige weg
In woonwijk

Tuin

Type
Achtertuin
Hoofdtuin
Ja
Oriëntering
Noord west
Heeft een achterom
Ja
Staat
Goed onderhouden
Tuin 2 - Type
Achtertuin
Tuin 2 - Staat
Goed onderhouden
Tuin 3 - Type
Voortuin
Tuin 3 - Staat
Goed onderhouden

Energieverbruik

Energielabel
D

CV ketel

CV ketel
ATAG
Warmtebron
Gas
Bouwjaar
2023
Combiketel
Ja
Eigendom
Huur

Uitrusting

Warm water
CV-ketel
Verwarmingssysteem
Centrale verwarming
Badkamervoorzieningen
Inloopdouche
Wastafel
Wastafelmeubel
Heeft kabel-tv
Ja
Tuin aanwezig
Ja
Heeft rolluiken
Ja
Heeft schuur/berging
Ja
Heeft een dakraam
Ja
Heeft een schuifpui
Ja
Heeft zonwering
Ja

Kadastrale gegevens

Kadastrale aanduiding
Maastricht K 2615
Perceeloppervlakte
153 m²
Omvang
Geheel perceel
Eigendomsituatie
Eigen grond

Brochure(s) en overige bijlagen

brochure Download