Verkocht:Louis Loyensstraat 12A, 6221 AK Maastricht - Foto
Verkocht
+35

Louis Loyensstraat 12A 6221 AK Maastricht

  • Appartement
  • 4 kamers
  • 3 slaapkamers
  • 1 badkamers
  • Bouwjaar 1920
  • 149 m² gebruiksoppervlakte
  • C Energielabel C

Beschrijving

Karaktervolle bovenwoning met ruimte, licht en dakterras!

In de Louis Loyensstraat tref je deze charmante en verrassend ruime bovenwoning. Een woning die het beste van twee werelden combineert: de statige uitstraling van een klassieke gevel met een modern en stijlvol interieur. Binnen wachten royale leefruimtes, een luxe keuken en badkamer, drie slaapkamers én een ruim dakterras waar je midden in de stad in alle rust kunt genieten.
Het is goed wonen in Wyck, een van de meest geliefde wijken van Maastricht, op een fijne en rustige locatie met het station om de hoek, de oude Servaasbrug op loopafstand en de gezellige winkels, boetieks, cafés en restaurants binnen handbereik.

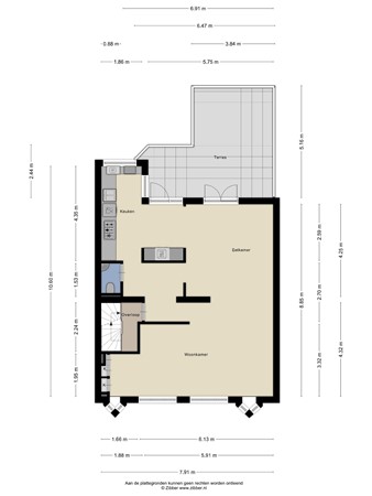
Indeling

Souterrain
Praktische kelderruimte met opstelplaats voor witgoed (wasmachine en droger) en extra bergruimte.

Eerste verdieping
Via de eigen entree en trap bereik je de woonverdieping. In de hal bevindt zich een toilet met fonteintje.
De woonkamer is een royale leefruimte met veel lichtinval dankzij de erkerramen en andere grote raampartijen, voorzien van kunststof kozijnen met HR++ beglazing. De houten vloer en de strakke afwerking zorgen voor een warme en eigentijdse uitstraling. Dankzij subtiele roomdividers zijn woonkamer en eetkamer mooi in open verbinding maar toch speels ingedeeld.

De keuken is royaal opgezet en biedt volop kastruimte en werkoppervlak. Uitgevoerd in een strak greeploos design en voorzien van luxe inbouwapparatuur, waaronder een gaskookplaat met plafondafzuiging, combi-oven, magnetron, koel/vriescombinatie en vaatwasser. Inbouwspotjes en het ruime werkblad maken dit tot een keuken waar kookliefhebbers zich direct thuis voelen. Vanuit de eetkamer en keuken loop je zo het dakterras op.

Het dakterras is een absolute verrassing: ruim, groen aangekleed en volledig privé gelegen. Een heerlijke plek om te genieten van de zon, een ontbijt in de ochtend of een gezellige borrel in de avond.

Tweede verdieping
Op de bovenverdieping bevinden zich drie slaapkamers, alle voorzien van houten vloeren en inbouwspotjes. De grootste slaapkamer beschikt over een praktische inbouwkast. De badkamer is modern en luxe afgewerkt met een ligbad, inloopdouche, royaal badmeubel met dubbele wastafel en toilet. Ook hier ligt een tegelvloer en zorgen de inbouwspots voor een strakke uitstraling.

Pluspunten op een rij

- Gelegen in geliefd Wyck, fijne en rustige locatie
- Op loopafstand van centrum, station en Maas
- Karaktervolle bovenwoning met fraaie gevel
- Kunststof kozijnen met HR++ beglazing, voordeur hout
- Royale woonkamer en eetkamer met houten vloeren en roomdividers
- Zeer ruime keuken met veel bergruimte en moderne inbouwapparatuur
- Luxe badkamer met ligbad, inloopdouche en royaal badmeubel
- Drie slaapkamers, grootste met inbouwkast
- Kelder met witgoedaansluitingen
- Heerlijk en privé gelegen dakterras
- Energielabel C
- VvE ingeschreven bij KvK maar slapend, ieder betaalt zijn eigen deel

Ligging

De Louis Loyensstraat ligt in Wyck, een statige en geliefde wijk vol karakter. Hier woon je op een fijne en rustige locatie, met speciaalzaken, trendy boetieks en restaurants op korte afstand. Het Centraal Station ligt letterlijk om de hoek en binnen enkele minuten wandel je via de historische Servaasbrug naar het bruisende stadscentrum. Ook de uitvalswegen en de groene Maasoevers zijn dichtbij. Een toplocatie voor wie houdt van stads wonen in een charmante en dynamische omgeving.
Marcel Overhof heet je van harte welkom!

Kaart

Kenmerken

Overdracht

Referentienummer
00015
Vraagprijs
€ 559.000,- k.k.
Inrichting
Niet gestoffeerd
Inrichting
Niet gemeubileerd
Status
Verkocht
Aanvaarding
In overleg
Aangeboden sinds
Maandag 25 augustus 2025
Laatste wijziging
Zondag 30 november 2025

Bouw

Type object
Appartement, bovenwoning
Woonlaag
2e woonlaag
Soort bouw
Bestaande bouw
Bouwperiode
1920
Dakbedekking
Bitumen
Type dak
Platdak
Keurmerken
Energie prestatie advies
Isolatievormen
Dakisolatie
HR-glas

Oppervlaktes en inhoud

Woonoppervlakte
149 m²
Woonkameroppervlakte
48 m²
Keukenoppervlakte
14 m²
Inhoud
592 m³
Oppervlakte overige inpandige ruimten
30,5 m²
Oppervlakte gebouwgebonden buitenruimte
24,9 m²

Indeling

Aantal bouwlagen
2 (en 1 kelder)
Aantal kamers
4 (waarvan 3 slaapkamers)
Aantal badkamers
1 (en 1 apart toilet)

Locatie

Ligging
Aan rustige weg
Dichtbij openbaar vervoer
In centrum
In woonwijk
Nabij school
Nabij treinstation

Tuin

Type
Zonneterras
Hoofdtuin
Ja
Oriëntering
Noord-oost
Staat
Goed onderhouden

Energieverbruik

Energielabel
C

CV ketel

CV ketel
Nefit Topline Aqua Power HRC 25/CW6+
Warmtebron
Gas
Bouwjaar
2009
Combiketel
Ja
Eigendom
Eigendom

Uitrusting

Warm water
CV-ketel
Verwarmingssysteem
Centrale verwarming
Badkamervoorzieningen
Dubbele wastafel
Inloopdouche
Ligbad
Toilet
Wastafelmeubel
Tuin aanwezig
Ja
Beschikt over een internetverbinding
Ja

Vereniging van Eigenaren

Ingeschreven bij de KvK
Ja

Kadastrale gegevens

Kadastrale aanduiding
Maastricht E 3066
Omvang
Appartementsrecht of complex
Eigendomsituatie
Eigen grond
Indexnummer
2

Brochure(s) en overige bijlagen

Louis Loyensstraat 12-A, 6221 AK MAASTRICHT (1) Download