Nieuw in verkoop:Minister Aalbersestraat 24, 6221 TJ Maastricht - Foto
Nieuw in verkoop
+24

Minister Aalbersestraat 24 6221 TJ Maastricht € 300.000,- k.k.

  • Eengezinswoning
  • 6 kamers
  • 3 slaapkamers
  • Bouwjaar 1951
  • 140 m² perceeloppervlakte
  • 101 m² gebruiksoppervlakte
  • C Energielabel C

Beschrijving

*** Wegens grote belangstelling is de agenda voor bezichtigingen inmiddels volledig gevuld. Geïnteresseerden kunnen zich nog wel aanmelden voor de reservelijst; bij eventuele annuleringen nemen wij direct contact op. ***

In de geliefde wijk Heugemerveld ligt deze tussenwoning met o.a. ruime woonkamer en keuken, drie slaapkamers, kelder, terrasoverkapping en 8 zonnepanelen. Een fijne basis voor wie betaalbaar wil wonen op een fijne locatie, op korte afstand van o.a. MUMC+, MECC, Wyck, het station, scholen en het centrum van Maastricht.
De woning verdient op onderdelen modernisering, maar biedt verrassend veel leefruimte en mogelijkheden om naar eigen smaak te verbeteren.

Ligging

Heugemerveld is populair vanwege de centrale ligging en het prettige woonklimaat. Binnen enkele minuten fietsen bereik je Wyck, het Centraal Station en de binnenstad. MUMC+ en MECC liggen om de hoek. Ook scholen, winkels (o.a. Lidl), openbaar vervoer en uitvalswegen richting A2 en Randwyck zijn snel bereikbaar. Een ideale plek voor starters, jonge gezinnen of medewerkers van MUMC+ en internationale instellingen.

Indeling

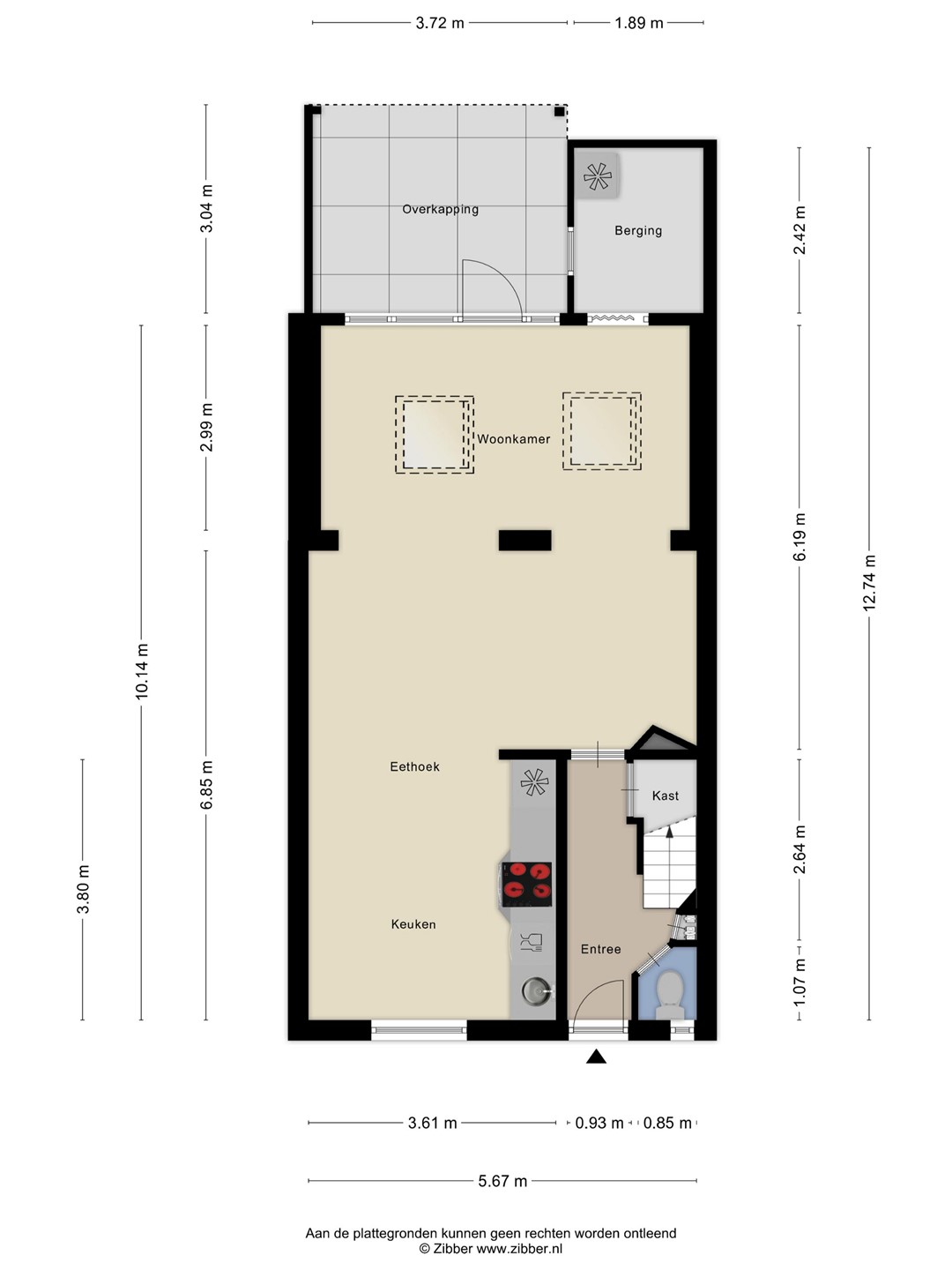
Kelder
Praktische provisiekelder van circa 1,78 x 3,74 m. Ideaal voor opslag.

Begane grond
Via de entree met toiletruimte en trapopgang kom je in de woonkamer en keuken.
Aan de voorzijde bevindt zich de ruime leefkeuken van ruim 14 m². Hier is ook volop plek voor een eettafel. De keuken is eenvoudig en functioneel ingericht en voorzien van onder andere een oven, keramische kookplaat, koel-vriescombinatie en vaatwasser. Een toegankelijke keuken met ruimte voor het gezin.
Aan de achterzijde ligt de woonkamer van 35 m², deels gerealiseerd in een uitbouw. Dankzij de lichtkoepels en de brede pui is dit een fijn lichte ruimte. Er is voldoende plaats voor een royale zithoek en eventueel een werkplek. Vanuit hier is er toegang tot de tuin.
Achterin de woonkamer bevindt zich een berging, praktisch voor extra opslag.

Tuin
De achtertuin is volledig betegeld en onderhoudsvriendelijk en heeft een praktische achterom. Onder de moderne terrasoverkapping zit je beschut en kun je al vroeg in het seizoen buiten zitten. Achterin staat een extra houten berging. De tuin is functioneel en biedt ruimte om naar eigen wens in te richten.

Verdieping
De overloop geeft toegang tot drie slaapkamers van ruim 11 m², 8 m² en 7 m². De grootste slaapkamer beschikt over een vaste muurkast. Alle slaapkamers zijn voorzien van rolluiken.
De badkamer is volledig betegeld en voorzien van een wastafel en een ruime douche. Daarnaast is hier de wasmachineaansluiting. De ruimte is verzorgd, maar eenvoudig van opzet.
Aan de overloop tref je ook een inloopkast aan, de opstelplaats van de cv-ketel en witgoedapparatuur zoals wasmachine en droger.

Bijzonderheden

* Gelegen in Heugemerveld
* Op korte afstand van MUMC+, MECC, Wyck, station en centrum
* Drie slaapkamers
* Ruime woonkamer met uitbouw
* Leefkeuken aan voorzijde
* Terrasoverkapping
* Kelder
* 8 zonnepanelen
* Energielabel C

Deze woning biedt een solide basis op een uitstekende locatie. Zoek je een huis waar je stap voor stap je eigen stempel op kunt drukken, zonder concessies te doen aan bereikbaarheid en leefruimte? Dan is Minister Aalbersestraat 24 absoluut het bekijken waard.
Neem gerust contact op met Marcel Overhof Makelaardij voor het plannen van een bezichtiging. We laten je de mogelijkheden graag zien.

Kaart

Kenmerken

Overdracht

Vraagprijs
€ 300.000,- k.k.
Status
Nieuw in verkoop
Aanvaarding
In overleg
Aangeboden sinds
Donderdag 12 februari 2026
Laatste wijziging
Woensdag 18 februari 2026

Bouw

Type object
Eengezinswoning, woonhuis, tussenwoning
Soort bouw
Bestaande bouw
Bouwjaar
1951
Dakbedekking
Dakpannen
Type dak
Zadeldak
Isolatievormen
Dakisolatie
Dubbel glas
Muurisolatie

Oppervlaktes en inhoud

Perceeloppervlakte
140 m²
Woonoppervlakte
101 m²
Woonkameroppervlakte
35 m²
Inhoud
380 m³
Oppervlakte overige inpandige ruimten
7 m²
Oppervlakte externe bergruimte
7 m²
Oppervlakte gebouwgebonden buitenruimte
11 m²
Tuinoppervlakte
78 m²

Indeling

Aantal bouwlagen
2 (en 1 kelder)
Aantal kamers
6 (waarvan 3 slaapkamers)

Locatie

Ligging
Aan rustige weg
In woonwijk

Tuin

Type
Achtertuin
Hoofdtuin
Ja
Oriëntering
Noord west
Heeft een achterom
Ja
Staat
Normaal
Tuin 2 - Type
Achtertuin
Tuin 2 - Staat
Normaal
Tuin 3 - Type
Voortuin
Tuin 3 - Staat
Normaal

Energieverbruik

Energielabel
C

CV ketel

CV ketel
HR-ketel
Warmtebron
Gas
Bouwjaar
2020
Combiketel
Ja
Eigendom
Huur

Uitrusting

Warm water
CV-ketel
Verwarmingssysteem
Centrale verwarming
Badkamervoorzieningen
Douche
Wastafel
Heeft kabel-tv
Ja
Tuin aanwezig
Ja
Heeft rolluiken
Ja
Heeft schuur/berging
Ja

Kadastrale gegevens

Kadastrale aanduiding
Maastricht F 4687
Perceeloppervlakte
140 m²
Omvang
Geheel perceel
Eigendomsituatie
Eigen grond

Media

Video

Plattegronden

Brochure(s) en overige bijlagen

brochure Download