Verkocht:Vergiliushof 49A, 6215 GJ Maastricht - Foto
Verkocht
+29

Vergiliushof 49A 6215 GJ Maastricht

  • Appartement
  • 4 kamers
  • 3 slaapkamers
  • 1 badkamer
  • Bouwjaar 1980
  • 89 m² gebruiksoppervlakte
  • B Energielabel B

Beschrijving

In de geliefde, kindvriendelijke wijk Daalhof ligt deze verrassend ruime niveauwoning met drie slaapkamers, inpandige garage, dakterras en zonnige tuin. De woning is rustig gelegen, maar toch gunstig ten opzichte van scholen, winkels, openbaar vervoer en uitvalswegen. Dankzij de speelse indeling, het royale woonoppervlak en de mogelijkheid tot modernisering is dit een ideale gezinswoning of een interessante investering. Er is namelijk een vergunning voor bewoning door drie studenten aanwezig

Indeling

Straatniveau
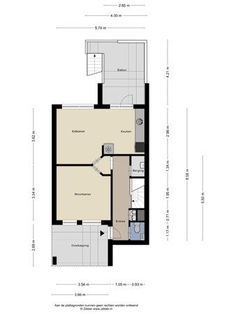
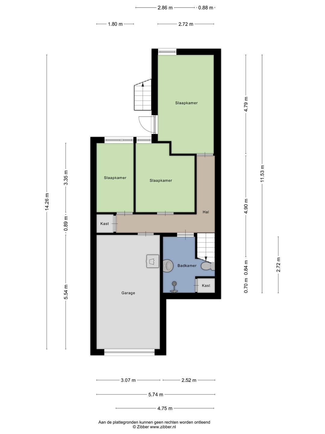
Via de entree bereik je de hal met meterkast, toilet met fonteintje, en toegang tot de berging met cv-installatie (Nefit HR, 2010, eigendom). Ook is er vanuit hier toegang tot de woonkamer, keuken en de vaste trap naar het tuinniveau met drie slaapkamers en badkamer.

De eetkamer en keuken bevinden zich aan de achterzijde van de woning en geven toegang tot het zonnige dakterras. De aangrenzende ruimte aan de voorzijde, momenteel in gebruik als vierde slaapkamer, kan eenvoudig worden toegevoegd aan het leefgedeelte. Door de scheidingsmuur tussen deze kamer en de eetkamer/keuken te verwijderen, ontstaat een royale open leefruimte van circa 26 m², met veel lichtinval en een logische indeling als (gezins)woning.

De keuken is functioneel maar gedateerd, en biedt daarmee ruimte voor een geheel nieuwe invulling naar eigen wens. Vanuit de keuken heb je toegang tot een ruim en zonnig dakterras met uitzicht over de tuin.

Tuinniveau
Op tuinniveau bevinden zich drie slaapkamers (ca. 13 m², 9 m² en 6 m²), alle gelegen aan de tuinzijde. De geheel betegelde badkamer beschikt over een inloopdouche, wastafelmeubel met opbergruimte en een tweede toilet.

De inpandige garage (ca. 17 m²) is voorzien van een kantelpoort en aansluiting voor wasmachine en droger. Vanuit hier heb je toegang tot de gemeenschappelijke binnenruimte.
De achtertuin (ca. 50 m²) is ruim en zonnig, gelegen op het zuidoosten, en zowel bereikbaar vanuit een van de slaapkamers als via een trap vanaf het dakterras.

Bijzonderheden
- Woonoppervlak circa 89 m²
- Woonkamer van circa 26 m² bij samentrekking voormalige slaapkamer
- Keuken dient te worden vernieuwd
- Geheel voorzien van kunststof kozijnen met HR++ beglazing
- Verwarming en warm water via Nefit HR combiketel (2010, eigendom)
- Er is een vergunning voor bewoning door 3 studenten aanwezig
- Servicekosten: € 160 per maand (incl. opstalverzekering, administratie en reservering groot onderhoud)
- Inpandige garage met binnendoor toegang

Wonen in Daalhof
Daalhof is een rustige en groene woonwijk aan de westzijde van Maastricht, geliefd bij zowel gezinnen als senioren. De wijk staat bekend om haar kindvriendelijke karakter, met diverse speelvoorzieningen, brede trottoirs en een prettig leefklimaat. Op loopafstand vind je een compleet wijkwinkelcentrum met onder andere een supermarkt, bakker, drogist en apotheek. Ook basisscholen, kinderdagverblijven en sportfaciliteiten zijn aanwezig.
De bereikbaarheid is uitstekend: met de fiets ben je binnen 10 minuten in het historische centrum van Maastricht, terwijl ook de uitvalswegen richting de A2 en A79 snel en eenvoudig te bereiken zijn. Bovendien is er een goede aansluiting op het openbaar vervoer, met meerdere bushaltes op korte afstand van de woning.
Daarnaast grenst Daalhof aan het natuur- en recreatiegebied van het Jekerdal en het Cannerbos, waar je heerlijk kunt wandelen of fietsen.
Kortom: een rustige woonomgeving met volop voorzieningen én de stad binnen handbereik.
Marcel Overhof Makelaardij.

Kaart

Kenmerken

Overdracht

Referentienummer
00017
Vraagprijs
€ 260.000,- k.k.
Servicekosten
€ 160,-
Status
Verkocht
Aanvaarding
In overleg
Aangeboden sinds
Donderdag 7 augustus 2025
Laatste wijziging
Donderdag 2 oktober 2025

Bouw

Type object
Appartement, benedenwoning
Woonlaag
1e woonlaag
Soort bouw
Bestaande bouw
Bouwperiode
1980
Dakbedekking
Bitumen
Type dak
Platdak
Keurmerken
Energie prestatie advies
Isolatievormen
HR-glas
Spouwmuren

Oppervlaktes en inhoud

Woonoppervlakte
88,6 m²
Woonkameroppervlakte
12,53 m²
Keukenoppervlakte
19 m²
Inhoud
374 m³
Oppervlakte overige inpandige ruimten
17 m²
Oppervlakte gebouwgebonden buitenruimte
22,4 m²
Balkonoppervlakte
12,5 m²

Indeling

Aantal bouwlagen
2
Aantal kamers
4 (waarvan 3 slaapkamers)
Aantal badkamers
1 (en 1 apart toilet)

Locatie

Ligging
Aan rustige weg
Dichtbij openbaar vervoer
In woonwijk
Nabij school

Tuin

Type
Achtertuin
Hoofdtuin
Ja
Oriëntering
Zuidoost
Staat
Normaal

Energieverbruik

Energielabel
B

CV ketel

CV ketel
Nefit HR
Warmtebron
Gas
Bouwjaar
2010
Combiketel
Ja
Eigendom
Eigendom

Uitrusting

Aantal parkeerplaatsen
1
Aantal overdekte parkeerplaatsen
1
Warm water
CV-ketel
Verwarmingssysteem
Centrale verwarming
Badkamervoorzieningen
Inloopdouche
Toilet
Wastafel
Parkeergelegenheid
Inpandige garage
Heeft een balkon
Ja
Tuin aanwezig
Ja
Heeft een garage
Ja

Vereniging van Eigenaren

Ingeschreven bij de KvK
Ja
Jaarlijkse vergadering
Ja
Periodieke bijdrage
Ja
Reservefonds
Ja
Meer jaren onderhoudsplan
Ja
Onderhoudsverwachting
Ja
Opstal verzekering
Ja

Kadastrale gegevens

Kadastrale aanduiding
Maastricht O 4413
Omvang
Appartementsrecht of complex
Eigendomsituatie
Eigen grond
Indexnummer
2

Brochure(s) en overige bijlagen

Vergiliushof 49-A, 6215 GJ MAASTRICHT (1) Download