Verkocht onder voorbehoud:Humcoverstraat 80, 6231 JR Meerssen - Foto
Verkocht onder voorbehoud
+53

Humcoverstraat 80 6231 JR Meerssen € 580.000,- k.k.

  • Eengezinswoning
  • 10 kamers
  • 4 slaapkamers
  • Bouwjaar 1978
  • 600 m² perceeloppervlakte
  • 238 m² gebruiksoppervlakte
  • B Energielabel B

Beschrijving

Deze woning aan de Humcoverstraat maakt direct indruk door de royale leefruimte, de verzorgde afwerking en de prachtige, privacyrijke tuin.
Met circa 238 m² woonoppervlakte, vier slaapkamers, een royale woonkamer met serre van samen circa 70 m² en een multifunctioneel souterrain biedt deze woning een bijzonder comfortabele hoeveelheid leefruimte. Door de jaren heen is het huis zorgvuldig onderhouden en op diverse punten gemoderniseerd, waardoor het geheel een zeer verzorgde en instapklare indruk maakt.
Ook buiten is het genieten. Achter de woning ligt een fraai aangelegde, diepe tuin op het zuidoosten met veel groen, meerdere terrassen en een prettig gevoel van privacy.

Ligging

De woning ligt in een woonomgeving met alle dagelijkse voorzieningen binnen handbereik. Het centrum van Meerssen met winkels, horeca en supermarkten ligt op korte afstand. Ook scholen, sportvoorzieningen en het treinstation van Meerssen zijn goed bereikbaar. Vanuit Meerssen bent u bovendien in korte tijd in Maastricht en zijn uitvalswegen richting Heerlen, Aken en Eindhoven eenvoudig bereikbaar.

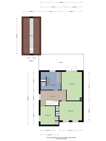
Indeling

Souterrain
Een van de grote pluspunten van deze woning is het souterrain. Het verwarmde gedeelte van circa 30 m² wordt momenteel gebruikt voor onder meer de opstelling van witgoedapparatuur, maar is ook uitstekend geschikt als hobbyruimte, werkruimte of fitnessruimte. Daarnaast is er een ruim niet-verwarmd deel dat ideaal is als berging.

Begane grond
Via de entree komt u in een verzorgde hal met toiletruimte en trapopgang. De woonkamer is royaal opgezet en heeft een prettige L-vorm met een extra zitruimte aan de voorzijde. Grote raampartijen zorgen voor veel lichtinval en een aangename sfeer. In de woonkamer bevindt zich een stijlvolle gaskachel en er is airconditioning aanwezig. Een klein niveauverschil van één trede geeft de ruimte een speels karakter.
Aan de achterzijde sluit de woonkamer aan op de serre. Deze lichte ruimte vormt een heerlijke verlenging van de leefruimte en biedt een prachtig zicht op de tuin. Dankzij de grote glaspartijen en de vernieuwde lichtkoepels (2022) voelt deze ruimte bijzonder licht en ruim aan. Vanuit de serre openen dubbele deuren naar het betegelde terras en de tuin. Ook hier is airconditioning aanwezig.
De keuken is ruim en praktisch ingericht en voorzien van onder meer een inductiekookplaat, oven, magnetron, vaatwasser, koelkast en afzuigunit.

Eerste verdieping
De eerste verdieping beschikt over drie slaapkamers en een ruime badkamer. Rolluiken zorgen hier voor extra comfort. De badkamer is verzorgd uitgevoerd en voorzien van een ligbad, douche, toilet en een brede dubbele wastafel met meubel. Elektrische vloerverwarming zorgt hier voor extra comfort.

Tweede verdieping
Via een vaste trap is de tweede verdieping bereikbaar. Hier bevindt zich de vierde slaapkamer met twee dakramen. Daarnaast vindt u hier praktische bergruimte en de opstelling van de cv-installatie.

Tuin
De tuin ligt op het zuidoosten en is fraai aangelegd met veel groen en uitstekende privacy. Direct achter de woning bevindt zich een ruim betegeld terras. Daarachter ligt een verzorgd gazon met een pad dat leidt naar een tweede terras en het tuinhuis achter in de tuin. Een heerlijke plek om van de rust en het groen te genieten.

Garage
De vrijstaande garage is voorzien van een elektrische poort en beschikt over water en elektra. Daarnaast is er een praktische vliering aanwezig die extra bergruimte biedt.

Bijzonderheden

* energielabel B (afgegeven vóór plaatsing van zonnepanelen en airco's)
* 16 zonnepanelen
* vier slaapkamers
* woonkamer met serre circa 70 m²
* multifunctioneel souterrain
* airconditioning aanwezig in woonkamer, serre en slaapkamer
* HR++ beglazing
* vernieuwde lichtkoepels in de serre (2022)
* rolluiken op de verdieping
* garage met elektrische poort en ruime vliering
* diepe, fraai aangelegde tuin op het zuidoosten met veel privacy

Humcoverstraat 80 biedt een zeldzame combinatie van ruimte, comfort en een prachtige tuin met veel privacy. Een woning die verrast door de hoeveelheid leefruimte en de verzorgde afwerking.
Marcel Overhof Makelaardij laat deze woning graag tijdens een bezichtiging aan u zien.

Kaart

Kenmerken

Overdracht

Vraagprijs
€ 580.000,- k.k.
Status
Verkocht onder voorbehoud
Aanvaarding
In overleg
Aangeboden sinds
Donderdag 12 maart 2026
Laatste wijziging
Dinsdag 7 april 2026

Bouw

Type object
Eengezinswoning, woonhuis, half vrijstaande woning
Soort bouw
Bestaande bouw
Bouwjaar
1978
Dakbedekking
Bitumen
Dakpannen
Type dak
Samengesteld
Isolatievormen
Dakisolatie
Dubbel glas
Muurisolatie

Oppervlaktes en inhoud

Perceeloppervlakte
600 m²
Woonoppervlakte
238 m²
Woonkameroppervlakte
69 m²
Inhoud
1.041 m³
Oppervlakte overige inpandige ruimten
57 m²
Oppervlakte externe bergruimte
9 m²
Oppervlakte gebouwgebonden buitenruimte
9 m²
Tuinoppervlakte
370 m²

Indeling

Aantal bouwlagen
3 (en 1 kelder)
Aantal kamers
10 (waarvan 4 slaapkamers)

Locatie

Ligging
In woonwijk

Tuin

Type
Achtertuin
Hoofdtuin
Ja
Oriëntering
Zuidoost
Staat
Prachtig aangelegd
Tuin 2 - Type
Achtertuin
Tuin 2 - Staat
Prachtig aangelegd
Tuin 3 - Type
Voortuin
Tuin 3 - Staat
Prachtig aangelegd

Energieverbruik

Energielabel
B

CV ketel

CV ketel
Remeha HR Calenta CW5
Warmtebron
Gas
Bouwjaar
2013
Combiketel
Ja
Eigendom
Eigendom

Uitrusting

Warm water
CV-ketel
Verwarmingssysteem
Centrale verwarming
Gaskachels
Vloerverwarming (gedeeltelijk)
Badkamervoorzieningen
Dubbele wastafel
Inloopdouche
Ligbad
Toilet
Wastafelmeubel
Heeft airco
Ja
Heeft een rookkanaal
Ja
Tuin aanwezig
Ja
Heeft rolluiken
Ja
Heeft schuur/berging
Ja
Heeft een dakraam
Ja
Heeft zonwering
Ja
Heeft zonnecollectoren
Ja

Kadastrale gegevens

Kadastrale aanduiding
Meerssen D 2128
Perceeloppervlakte
515 m²
Omvang
Geheel perceel
Eigendomsituatie
Eigen grond
Kadastrale aanduiding
Meerssen D 2190
Perceeloppervlakte
85 m²
Omvang
Geheel perceel
Eigendomsituatie
Eigen grond

Brochure(s) en overige bijlagen

brochure Download