Verkocht:Wilhelminalaan 96, 6042 EP Roermond - Foto
Verkocht
+53

Wilhelminalaan 96 6042 EP Roermond

  • Woonhuis
  • 5 kamers
  • 4 slaapkamers
  • 2 badkamers
  • Bouwjaar 1938
  • 655 m² perceeloppervlakte
  • 229 m² gebruiksoppervlakte

Beschrijving

Karakter, comfort en charme komen hier samen in een unieke jaren ’30-woning in het geliefde Maasniel, aan de rand van Roermond. Deze halfvrijstaande woning ademt sfeer vanaf het allereerste moment. Met 229 m² woonoppervlak, een perceel van maar liefst 655 m², vier slaapkamers, twee badkamers, een ruime uitbouw, een kelder van 40 m² en een garage, is er aan ruimte geen gebrek. Maar het is de ziel van de woning die het verschil maakt: originele glas-in-loodramen, stijlvolle en-suitedeuren, een statig trappenhuis en die typische jaren ’30-dakopbouw maken van elke ruimte een beleving. Voeg daar de rustige, kindvriendelijke ligging aan toe, met scholen, winkels, natuur en de binnenstad van Roermond op fietsafstand, en je weet: hier wil je wonen.

Indeling

Kelder
Een huis met een kelder heeft altijd iets bijzonders. Hier vind je er één van formaat: ca. 40 m², verdeeld in drie delen. Een wijnkelder voor de fijnproever, een proviandruimte voor de voorraad, en plek voor de cv-installatie. Koel, droog en perfect bruikbaar voor opslag, hobby of gewoon als extra leefruimte.

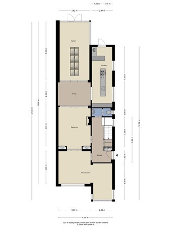
Begane grond
De statige voordeur geeft toegang tot een ruime hal met parketvloer en garderobe. Maar het oog wordt direct getrokken naar het trappenhuis: een imposante glas-in-loodpartij werpt warm licht de woning in en zet direct de toon. Aan de voorzijde ligt de woonkamer, licht en uitnodigend, met een charmante erker, parketvloer en ramen met glas-in-lood. Via de originele en-suitedeuren met ingebouwde servieskast loop je door naar de eetkamer: een sfeervolle ruimte met een marmeren schouw, open haard en zicht op de tuin. De royale keuken (2,47 x 7,34 m) is een fijne plek voor wie graag kookt én leeft. Het natuurstenen werkblad, het kook- en spoeleiland, de stijlvolle tegelvloer en de toegang tot het terras maken dit tot het kloppend hart van het huis.
De uitbouw aan de achterzijde (3,62 x 7,04 m) voelt als een oase van licht. Dankzij de lichtstraat en grote raampartijen baadt deze ruimte, met vloerverwarming, in daglicht. Ideaal als kantoor, atelier of speelruimte. En altijd met zicht op het groen van de achtertuin.

Eerste verdieping
Op de overloop speelt het glas-in-lood opnieuw de hoofdrol. Twee ruime slaapkamers (ca. 15 en 19 m²) met muurkasten bieden volop rust en comfort. De slaapkamer aan de achterzijde beschikt over een ensuite badkamer met ligbad, dubbele wastafel en tweede toilet, misschien wat gedateerd, maar sfeervol en functioneel. De tweede badkamer is modern en stijlvol met een inloopdouche (mozaïek), dubbele wastafel, (derde) toilet en bidet.

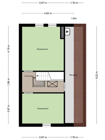
Tweede verdieping
Licht en ruimte kenmerken ook deze verdieping. Via de steektrap en onder een lichtkoepel bereik je twee slaapkamers (ca. 17 en 12 m²), elk met bergruimte en een fijne sfeer. Ideaal als kinderkamer, logeerkamer of thuiswerkplek. Daarnaast is er nog een grote bergruimte.

Zolder
De vlizotrap leidt naar een praktische bergzolder, handig voor koffers, kerstspullen en andere zaken die je uit het zicht wilt houden.

Buitenruimte
De achtertuin is een groene, besloten oase met zon- én schaduwplekken, een vijvertje, borders, een moestuin, een kas, meerdere terrassen en een heerlijke overkapping achterin de tuin. Of je nu wilt tuinieren, luieren, spelen of tafelen: hier kan het allemaal. Achterin ligt ook de garage/berging (ca. 5,44 x 2,30 m). Aan de voorzijde biedt de royale oprit ruimte voor meerdere auto’s, omringd door groen.

Bijzonderheden

- Gemeentelijk monument, vrijstelling energielabel
- Ca. 229 m² woonoppervlak op 655 m² perceel
- Spouwmuurisolatie aangebracht
- 12 zonnepanelen met accu 10 kWh en back-up systeem (2024)
- Cv-ketel vernieuwd in 2022
- Authentieke details zoals glas-in-lood, ensuite-deuren, originele trap
- Vloerverwarming in uitbouw
- Royale kelder en lichte uitbouw met zicht op de tuin
- Garage/berging én kas in de tuin
- Privacyrijke, fraai aangelegde achtertuin met veel groen
- Rijke lichtinval in vrijwel alle vertrekken

Ligging

Maasniel is een rustige, ruim opgezette wijk met de charme van een dorp en de voorzieningen van een stad. Je vindt hier alles wat je dagelijks nodig hebt: basisscholen, middelbare scholen, winkels, sporthal, zwembad, gezondheidsvoorzieningen en een levendig verenigingsleven. Roermonds centrum, het Retailpark en de huis- en tuinboulevard liggen op fietsafstand. En dankzij de directe aansluiting op de A73 zijn steden als Maastricht, Eindhoven, Venlo en Düsseldorf allemaal binnen een halfuur bereikbaar. Ook natuurliefhebbers zitten hier goed: Nationaal Park de Meinweg ligt om de hoek.

Ben je op zoek naar een authentieke jaren ’30-woning waar sfeer en ruimte hand in hand gaan, waar je binnenkomt en meteen voelt: dit klopt? Dan is dit je kans! Bel of mail Marcel Overhof Makelaardij en plan vandaag nog een bezichtiging. Deze woning moet je beleven.

Kaart

Kenmerken

Overdracht

Vraagprijs
€ 680.000,- k.k.
Status
Verkocht
Aanvaarding
In overleg
Aangeboden sinds
Maandag 7 juli 2025
Laatste wijziging
Dinsdag 16 september 2025

Bouw

Type object
Woonhuis, herenhuis, half vrijstaande woning
Soort bouw
Bestaande bouw
Bouwperiode
1938
Dakbedekking
Bitumen
Dakpannen
Type dak
Samengesteld
Isolatievormen
Dakisolatie
Grotendeels dubbel glas
HR-glas
Muurisolatie
Spouwmuren

Oppervlaktes en inhoud

Perceeloppervlakte
655 m²
Woonoppervlakte
228,5 m²
Woonkameroppervlakte
89 m²
Keukenoppervlakte
18,13 m²
Inhoud
1.032 m³
Oppervlakte overige inpandige ruimten
62,8 m²
Oppervlakte externe bergruimte
19 m²

Indeling

Aantal bouwlagen
4 (en 1 kelder)
Aantal kamers
5 (waarvan 4 slaapkamers)
Aantal badkamers
2 (en 1 apart toilet)

Locatie

Ligging
In woonwijk
Nabij school
Nabij snelweg

Tuin

Type
Achtertuin
Hoofdtuin
Ja
Oriëntering
Noord-oost
Staat
Goed onderhouden
Tuin 2 - Type
Voortuin
Tuin 2 - Oriëntering
Zuid-west
Tuin 2 - Staat
Goed onderhouden

CV ketel

CV ketel
Remeha Calenta ACE 40C combi
Warmtebron
Gas
Bouwjaar
2022
Combiketel
Ja
Eigendom
Eigendom

Uitrusting

Aantal parkeerplaatsen
5
Warm water
CV-ketel
Verwarmingssysteem
Centrale verwarming
Vloerverwarming (gedeeltelijk)
Keukenvoorzieningen
Inbouwapparatuur
Kookeiland
Spoeleiland
Badkamervoorzieningen Badkamer 1
Dubbele wastafel
Ligbad
Toilet
Badkamervoorzieningen Badkamer 2
Bidet
Dubbele wastafel
Inloopdouche
Toilet
Parkeergelegenheid
Vrijstaande stenen garage
Heeft kabel-tv
Ja
Heeft een rookkanaal
Ja
Tuin aanwezig
Ja
Heeft een garage
Ja
Telefoonaansluiting aanwezig
Ja
Beschikt over een internetverbinding
Ja
Heeft een dakraam
Ja
Heeft zonwering
Ja
Heeft zonnepanelen
Ja

Kadastrale gegevens

Kadastrale aanduiding
Maasniel B 2539
Perceeloppervlakte
655 m²
Omvang
Geheel perceel
Eigendomsituatie
Eigen grond

Media

Virtuele tour

Plattegronden

Brochure(s) en overige bijlagen

Wilhelminalaan 96, 6042 EP ROERMOND (1) Download