Nieuw in verkoop:De Sauveurstraat 27, 6235 BA Ulestraten - Foto
Nieuw in verkoop
+19

De Sauveurstraat 27 6235 BA Ulestraten € 375.000,- k.k.

  • Eengezinswoning
  • 6 kamers
  • 3 slaapkamers
  • Bouwjaar 1973
  • 328 m² perceeloppervlakte
  • 115 m² gebruiksoppervlakte
  • A Energielabel A

Beschrijving

Deze fijne gezinswoning ligt in een rustige straat in Ulestraten, met Maastricht, Meerssen en de A2 binnen handbereik. De woning is recent volledig gemoderniseerd. Recentelijk is o.a. de achter- én voortuin opnieuw aangelegd en diverse belangrijke vernieuwingen uitgevoerd. Zo zijn de keuken, badkamer, toilet, meterkast en radiatoren in bijna alle kamers vernieuwd. Daarnaast zijn er 13 zonnepanelen geplaatst, is een airconditioningsysteem geïnstalleerd en is de woning voorzien van rolluiken, wat zorgt voor extra comfort en energiezuinigheid.

De lichte woonkamer met eethoek en open keuken vormen het hart van de woning. Grote ramen, een doorlopende tegelvloer en strak stucwerk geven deze ruimte een moderne en rustige uitstraling. De hoogglans witte keuken met donker werkblad is uitgerust met een inductiekookplaat, afzuigkap, spoelbak, en hoge kastenwand met oven en magnetron.

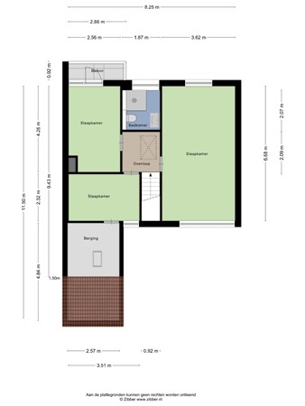
Op de eerste verdieping bevinden zich drie fijne slaapkamers en een eigentijds afgewerkte badkamer met inloopdouche, wandcloset, designradiator en wastafelmeubel. Daarnaast beschikt de woning over een kelder op stahoogte en een grote, volle zolder die nog verder kan worden ontwikkeld tot bijvoorbeeld werkplek, extra slaapkamer of royale opslagruimte.

De ruime aangebouwde garage, met oprit, én de ruime kelder (stahoogte) bieden voldoende bergruimte en gemak. Dankzij de rustige ligging in Ulestraten, nabij voorzieningen en uitvalswegen, is dit een ideale plek voor gezinnen die comfort, ruimte en enerzijds rust, en anderzijds bereikbaarheid zoeken.

Pluspunten:

- Lichte living met open keuken en eethoek
- Moderne badkamer met inloopdouche
- Drie slaapkamers
- Ruime kelder op stahoogte en ruime zolder
- Garage met oprit
- Recent aangelegde achtertuin en voortuin
- 13 zonnepanelen en airconditioning voor extra comfort
- Rustige en kindvriendelijke locatie in Ulestraten

Kortom: een ruime, lichte en compleet gemoderniseerde woning met veel praktische ruimte, moderne faciliteiten en een fijne rustige uitstraling. Kom snel kijken en ervaar zelf hoe prettig wonen dit kan zijn!

Kaart

Kenmerken

Overdracht

Vraagprijs
€ 375.000,- k.k.
Status
Nieuw in verkoop
Aanvaarding
In overleg
Aangeboden sinds
Donderdag 9 oktober 2025
Laatste wijziging
Dinsdag 21 oktober 2025

Bouw

Type object
Eengezinswoning, woonhuis, half vrijstaande woning
Soort bouw
Bestaande bouw
Bouwjaar
1973
Dakbedekking
Dakpannen
Type dak
Zadeldak
Isolatievormen
Dakisolatie
Dubbel glas
Muurisolatie

Oppervlaktes en inhoud

Perceeloppervlakte
328 m²
Woonoppervlakte
115 m²
Woonkameroppervlakte
24 m²
Inhoud
690 m³
Oppervlakte overige inpandige ruimten
81 m²
Oppervlakte gebouwgebonden buitenruimte
5 m²
Tuinoppervlakte
85 m²

Indeling

Aantal bouwlagen
3 (en 1 kelder)
Aantal kamers
6 (waarvan 3 slaapkamers)

Locatie

Ligging
Aan rustige weg
In woonwijk

Tuin

Type
Achtertuin
Hoofdtuin
Ja
Oriëntering
Zuidoost
Heeft een achterom
Ja
Staat
Normaal
Tuin 2 - Type
Achtertuin
Tuin 2 - Staat
Normaal
Tuin 3 - Type
Voortuin
Tuin 3 - Staat
Normaal

Energieverbruik

Energielabel
A

CV ketel

CV ketel
Intergas Kompact HRE
Warmtebron
Gas
Bouwjaar
2023
Combiketel
Ja
Eigendom
Huur

Uitrusting

Warm water
CV-ketel
Verwarmingssysteem
Centrale verwarming
Badkamervoorzieningen
Inloopdouche
Toilet
Wastafel
Wastafelmeubel
Heeft een balkon
Ja
Heeft kabel-tv
Ja
Tuin aanwezig
Ja
Heeft rolluiken
Ja
Heeft schuur/berging
Ja
Heeft een dakraam
Ja
Heeft een schuifpui
Ja
Heeft zonwering
Ja
Heeft zonnecollectoren
Ja

Kadastrale gegevens

Kadastrale aanduiding
Ulestraten B 3002
Perceeloppervlakte
328 m²
Omvang
Geheel perceel
Eigendomsituatie
Eigen grond

Media

Plattegronden

Brochure(s) en overige bijlagen